475 High Performance Building Supply
Location:
Brooklyn, NY
Award:
AIANY Design Award 2026
Certification:
Passive House Plus, Passive House Institute, Darmstadt Germany
PHIUS ZERO, Passive House Institute US, Chicago IL
General Contractor: Mario Bissessar, City Line Interiors Inc
Structural Engineer: Murray Engineering, PC
Passive House Consultant: : John Mitchell, BLDGTYP
Passive House Verification: Troy Hodas, Spruce Mountain Inc.
Mechanical Engineer: 475 High Performance Building Supply, Ryan Enschede Studio
Lighting Design: Ryan Enschede Studio, 475 High Performance Building Supply
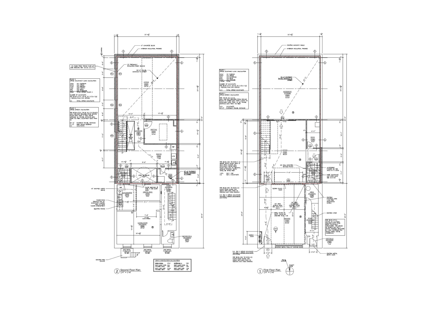
A wood building deep in the brick city; a hidden statement behind an unremarkable neighborhood façade. This project adapted one of the innumerable plain motes of everyday New York City into a high-performance, low-energy demonstration of values and commitment from its new owner.
After a decade and a half of rapid growth, the leading North American distributor of materials for energy-efficient construction had outgrown the uncomfortable rental garage that long served as its U.S. headquarters. A desire for comfort and ownership led to the acquisition of a small mixed-use commercial building with sufficient unbuilt floor area to permit expansion.
What resulted is a rare assemblage of achievement: technical rigor, beauty, and a catalyst for change. The new spaces are the first in the world certified by both PHI and Phius standards, accomplished without reliance on plastic foam insulation or energy-intensive structural systems, within the constraints of an adaptive re-use in a dense urban environment. The low-carbon Nail Laminated Timber structure provides both architectural language and material identity, suffusing the spaces with an emblematic character. Light and beauty are derived from deeply technical construction values. As prominent advocates of Passive House construction, the project is a showpiece for the future.













