Groundworks
Location: Gardiner, NY
In 2020 two dear friends purchased a horse farm situated in a bend of the Shawangunk Kill near Gardiner NY, with the vision of creating a place to support work they believed in. Encircled by the river and fields, and with the white cliffs of the Gunks as backdrop, the property was spectacular. And it came with a number of useful existing buildings. But it lacked a singular central space for the new purpose. This project transformed a utilitarian three-bay farm garage into that space: a multipurpose room for work, meeting, and presentation, but most importantly an emblematic centerpoint to express the character of the new place.
For this room we envisioned a singular and strongly centered space. A neutral ground: internally focused, warm and comfortable, with a strong presence and the flexibility needed to accommodate many purposes. Filtered from the outside world to facilitate presence to purpose when within, aesthetically present but not rigid, and still intimately connected to the beautiful surroundings.
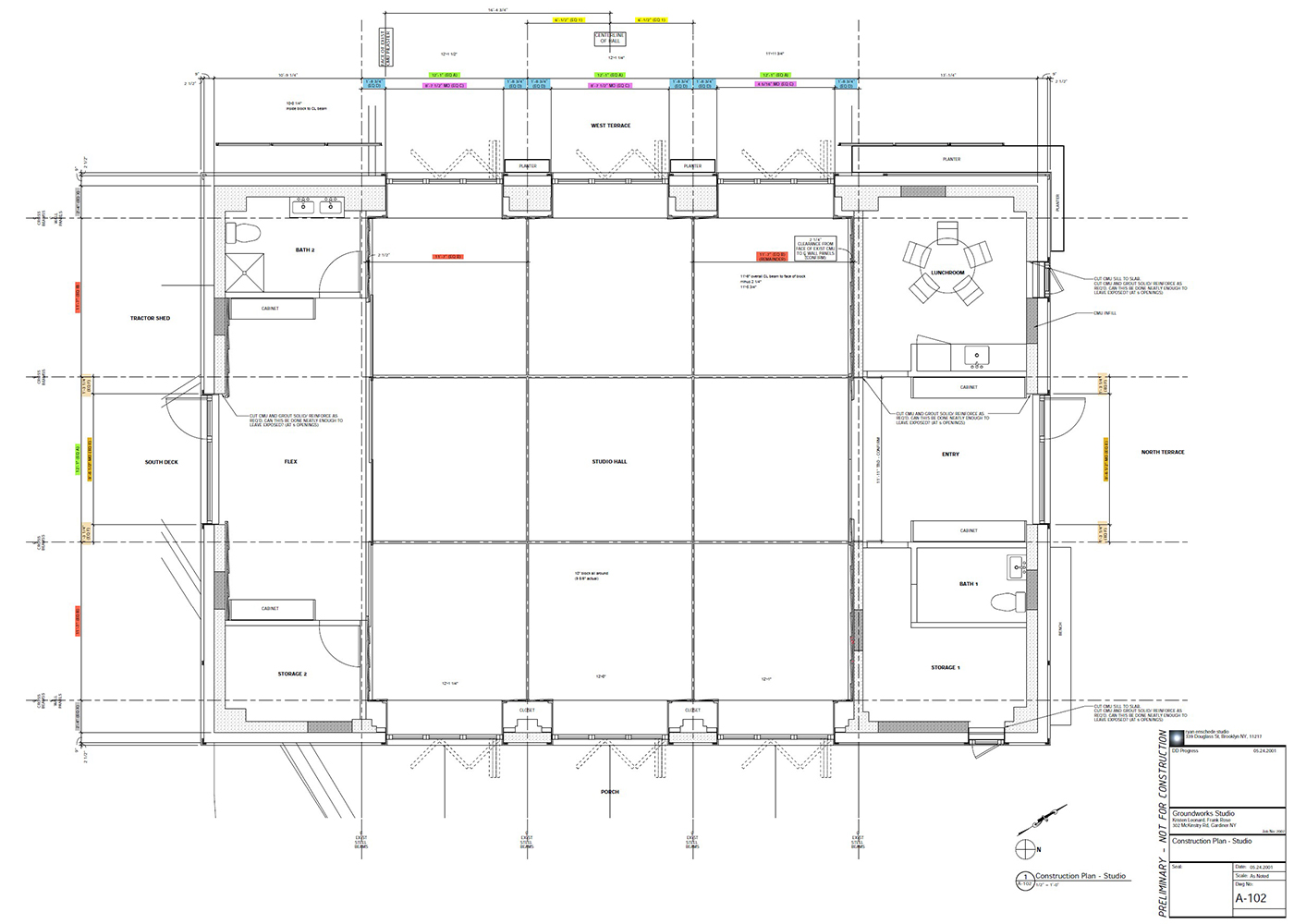
Given the geometry of the existing building’s structure and shell, the architectural form of a nine-square grid emerged to become the emblem which gives the desired character to this room. This shape repurposed the four immense overhead steel beams and the three large existing doorways of the previous vehicle bays to make a space that is simultaneously strongly centered and neutral in character. New matching openings at the other three sides of the building reinforce this form and open it broadly all around. Ancillary functions and new porches wrap the perimeter and buffer the outwards connection. Overhead, two great new light monitors give presence to the simple form of the existing garage shed and bring light into the new space from above. By making structural use of the abandoned overhead beams the monitors are thereby aligned to the grid below, but their openings break the arbitrary man-made geometry of the existing farm building layout, orienting due South to the sun and the natural world.
The project was built as an uncertified Passive House. The existing building was a very simple concrete block box with a wood truss roof, over which we added an exterior air barrier, then a new cavity for exterior insulation, enclosed with two finishes of black corrugated metal siding. It is very much a family affair, built by the owners themselves, with almost all the construction done by Mike Leonard, the owner’s brother, who built the tightest building envelope that the Passive House consultant had ever seen.




























