Meadow Passive House
Location: Hillsdale, NY
Certification: PHIUS+ Passive House
Builder: Zuniga Property Solutions
Passive House Consultant: John Loercher, Northeast Projects
PHIUS Verifier: Adin Maynard, Power House Energy Consulting
Mechanical Engineer: Cramer Silkworth, Baukraft Engineering
Structural Engineer: Kaaterskill Associates
Set in a clearing at the foot the Berkshires, this house aims to be the home of the future.
As a certified Passive House, it uses a fraction of the energy of its neighbors. As an all-electric home it uses no fossil fuels whatsoever: there is no combustion within this house. It is exceptionally comfortable. Triple glazed windows are never cold, and a dedicated ventilation system provides fresh, filtered air throughout, even in the dead of winter and the worst heat of summer. A rooftop solar array offsets the building’s modest energy needs.
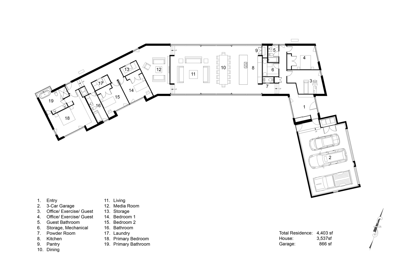
The design gently steps upwards across an open meadow at the center of the wooded site, extending East-to-West in the manner of classic passive solar design with generous south-facing glazing to capture the warmth of wintertime sun. Instead of imposing itself onto the landscape the long design and floor-to-ceiling glazing connect the house outwards into the site, flowing space from inside to outside. Bedroom wings are placed at either end of a great room which opens along both sides of its full length, allowing the site to flow dramatically through the center of the home.
I was part of the partnership which speculatively built and then sold this house. We proposed to ourselves and then delivered to market something better than the visually-oriented but technologically backward houses typical of the high-end rural home market surrounding New York City, successfully balancing environmental values, aesthetics, and the economics necessary for the viability of this project as a business venture.












