ORHS 1
previous arrow
next arrow

Oregon Historical Society

Location: Portland, OR

This project is a hypothetical re-envisioning of the Oregon Historical Society. Located in downtown Portland, OHS collects, exhibits and publishes materials related to the historic Oregon Country: its mission is to make that history relevant to contemporary Oregonians via a historical museum, library, film archive, and educational programming. This is an institution whose goal is to help people learn about themselves via the history of their own place.

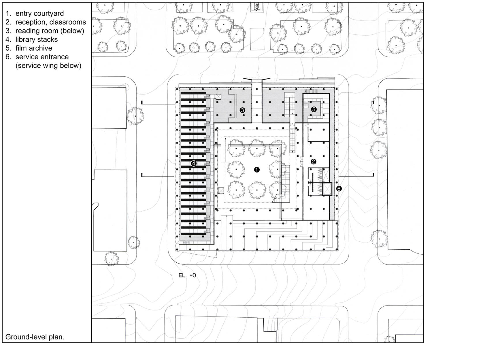
The proposal grows from a dissatisfaction with typical curatorial story-telling. It seeks to facilitate a deeper engagement for visitors with their past and thereby better fulfill the Society’s mission. Drawing upon a concept used by the Metropolitan Museum of Art, amongst others, conventional galleries are replaced by an “open storage” archive of the permanent collection. Curated storytelling is entirely omitted. The museum becomes simply a self-service archive. The archive is then presented by location: all materials for a particular place, across time and culture, are placed together. The visitor browses freely through the archive from “place” to “place,” or seeks out locations in which they have interest. Inevitably visitors will seek out their own home, places they have lived. Instead of a narrative chosen by the curator, the archive utilizes the powerful mechanism of curiosity about one’s own life to engage with unknown facets of personal history, creating their own narrative: “Look how it used to be!…” “Who knew that’s who used to live in our town?”

The architecture of the building is designed to reinforce an experience of separation-then-reconnection. Visitors are first brought from the street to an internal courtyard, buffered from the surrounding city. Using street-level grade as a metaphor for the here-and-now, visitors then depart their contemporary lives, either ascending to the elevated museum or descending to the below-grade library. Further extending the separation metaphor, the museum is housed within twelve abstract metallic cubes. Light and exterior views are screened, withholding direct perception of the world outside. Within these rooms passes a separate structure which houses the archive. Constructed of rammed earth from the soil of the Oregon Country’s various regions, the archive’s tactility attracts and connects as the metallic container repulses and separates. The visitor is free to circulates up, onto, and through the archive structure as desired. The last room is empty. The archive becomes a stair which begins the return to current time: as Oregonians are collected back to the museum floor they are presented with the only direct exterior view, back down busy Broadway St as a reminder of the here-and-now.

ORHS plan 1
previous arrow
next arrow